Kitsmont

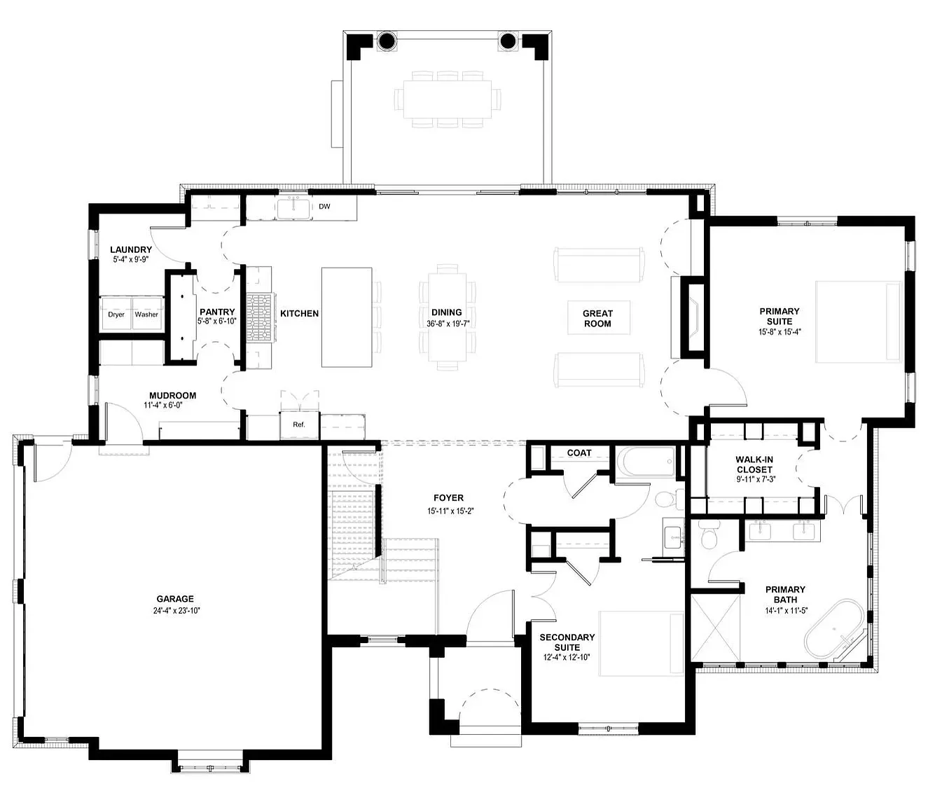
This stunning custom home in an upscale Forest, VA neighborhood exemplifies the perfect blend of modern elegance and functional design. Featuring expansive open living spaces, high-end finishes, and thoughtfully crafted architectural details, the residence offers both comfort and sophistication. Large windows allow natural light to fill the interiors, highlighting the quality craftsmanship throughout. The home’s seamless integration with its beautifully landscaped surroundings provides a serene and inviting atmosphere, making it an ideal retreat in one of Forest’s most desirable communities.